![]() |

I was more talented at 13 than I am at 29, sad but true. I built my Nintendo Entertainment System Cabinet between 7th and 8th grade after having spent months designing it. I still have all of my original plans and sketches too :). If I ever drag myself into the attic I'll post'em on here.
Back in the day there was only Nintendo. Well, actually only Nintendo to me that is. My dad paints signs so I was able to prime billboard panels for extra money. All of that money went into buying NES games. All of it. Now if I'd just bought a few shares of Microsoft instead......
Before my NES I was obsessed with arcade games. Gimme a quarter, gimme a quarter, can I have another quarter....... I'm pretty sure my parents still hear that in their sleep. When the NES Advantage (designed my Lance Barr) was shown in the summer 1987 issue of the Nintendo Fun Club newsletter (summer 1987 issue) I had the picture tacked to my wall next to my bed. Awesome. Oh I couldn't wait to play with that thing! Just like the arcades I thought. When it was finally released I was the first one down there. This is where the cab starts.
Now having purchased two NES Advantage joysticks and a plethora of games (yeeeees, I had a plethora) I was on my way to a home arcade. Luckily I had wood shop in school of 7th grade and we had to design and build something. I made a small shelf for my NES and games which worked pretty well but that got me thinking of what else I could make. My parents bought me a 19" TV for being student of the month at school so I was all set (although I think it was to get SMB out of the living room).
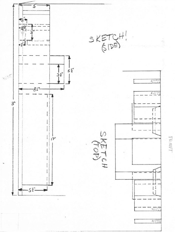
I sketched and drew and drew for months before coming to my final design. Once I had everything planned out I bought 3 4x8 sheets of 1/2" MDO. MDO is what most (all?) billboards were made out of before baggy faces. It is a plywood with a smooth veneer on both sides (or 1 side), fantastic for painting. I also got some 1x6 pine and some 2x2s.
I cut the long slits in the front and sides with a circular saw and everything else on their with a jigsaw. Because of that I have a lot of sanding to do. Really the hardest part was cutting the many small pieces that mount the NES Max controllers at an angle while the holes were at an angle already. I'd have to say I'm glad I had it all drawn out ahead of time.
Once I had everything cut I started assembling the cabinet. I used all screws to make it more secure. After I got it all put together I tested out the fit of the games!

I can't believe the ladies didn't jump all over me back then, I mean come on look at me, I was a stallion!
Next was to putty the holes and sand, and putty and sand, and putty and sand. The worst part of any project. By this point you just want it done since it seems so close. I also stained the insides of the shelves where the console, games and controllers are kept.
After it was all puttied. I had my dad spray paint it for me since he had a nice large shop to use and years of experience with a sprayer. There are 5 coats of gloss black on there, and even today it is still nice and shiny. Although it was not water based stuff you find at a normal store, it is the old fashioned enamel lead based stuff they still use for outdoor signage. Good stuff :). My dad also painted the NINTENDO logo.
After the paint I put trim on there but I couldn't find trim at 1/2" so I got some 3/4" stuff and trimmed it with a utility knife. I also added black sheet metal to the top and attached a piece of magnetic strip so I could hang maps up.
My grandma made the pad and I put that in between the NES Advantage joysticks.
My mom painted the Mario, Samus, Link, Howard and Nester. She did a GREAT job based on the Nintendo Fun Club magazine! Nowdays I would just scan, print and stick it on there but back then it wasn't much of an option at home.
In between the painting of the characters I added pop holders to the sides, game manual and book racks, rack magazine rack and another rack for codes cards (cheats, continue codes, etc).
Once it was all finished it had it in my bedroom to play with. Oh those were the days........
I wrote a letter to Nintendo about my new arcade and was published in the July/August 1989 Nintendo Power Magazine. I believe I had a 3 page letter that was rudely squished down to a couple lines. Oh well, it was a major accomplishment for a kid in Wyoming.
Once I went to college I sold my entire collection of video games to pay for books and such so my parents kept the arcade and stuck some of their favorites in there instead. But eventually it ended up in my own house after being moved multiple times and I filled it back up with games won from Ebay. But it isn't quite the same since I don't have the games I originally bought. Deoh.
Still though, every kid that enters the house goes right toward it and wants to play. The NES is still cool!
A few more pics:












